大幸ハウジング-大阪市福島区の不動産会社
大阪市の不動産のお悩みは大幸ハウジングへお任せください。
  • ホーム
  • 成約実績
  • ご挨拶
  • 会社概要
  • お問い合わせ

物件紹介


【中古一戸建】西成区千本北2丁目(オーナーチェンジ)

◆オーナーチェンジ物件

◆表面利回り:5.4%

◆東南角地

◆外壁塗装履歴、屋根修復履歴有

 

物件概要

 

価格 2,000万円
所在地 大阪市西成区千本北2丁目
交通

南海汐見橋線 西天下茶屋駅  徒歩約5分
バス

接道状況等

公道 :約5.2m  南  幅員: 約4.0m

私道 :約9.0m  東  幅員: 約4.0m

土地面積

公簿 44.56㎡

土地権利

所有権

私道負担

-

地目

宅地

地勢

平坦

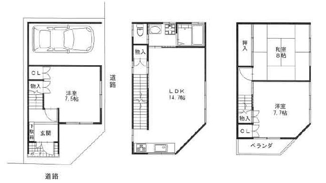
建物面積 96.79㎡ 1F30.31㎡  2F:34.82㎡ 3F:31.66㎡
建物構造 木造・鉄筋コンクリート
地上階 3階
間取り 3LDK
駐車場 無
築年月 平成6年3月
用途地域 第一種住居地域
都市計画 市街化区域
地域地区 準防火
建蔽率 80%
容積率 200%
国土法届 -
その他法令上の制限 準防火地域
 現況 賃貸中
引渡 相談

備考

売主契約不適合責任免責、現状有姿、現賃貸契約継承

オーナーチェンジ物件:賃料月額90,000万円

表面利回り:5.4%

所在地

  • 【中古一戸建】大阪市福島区吉野3丁目
  • 【中古一戸建】大阪市大正区北村1丁目
  • 【中古一戸建】大阪市西成区千本北2丁目
  • 【中古マンション】レオーネマンション
  • 【売地】此花区春日出北2丁目建築条件付土地
  • 【売地】西淀川区佃3丁目 建築条件付売地
  • 【売地】此花区春日出北1丁目住宅用地売地
  • 【売地】東成区 東小橋3丁目 売店舗

連絡先:

大幸ハウジング

〒553-0006

大阪市福島区吉野3丁目8番13号

Tel:06-6462-6711

Fax:06-6462-6710

mailでの連絡はこちら


NEWS

2026.1.20

此花区春日出北2丁目をアップしました。

2025.12.10

福島区吉野3丁目をアップしました

大正区北村1丁目をアップしました

ユニライフ福島をアップしました

港区築港3丁目をアップしました

2025.11.11

西成区千本北2丁目(オーナーチェンジ)をアップしました。

西成区岸里2丁目

をアップしました。

プレセダンヒルズ向島Eastを追加しました。

レオーネマンションをアップしました。

 


リンク

【アットホーム】大幸ハウジング

【SUUMO】大幸ハウジング


不動産のお悩み、お問合せは大幸ハウジングへ
プライバシーポリシー | サイトマップ
Copyright © 2016 Daiko housing All Rights Reserved.
ログイン ログアウト | 編集
  • ホーム
    • 【中古一戸建】大阪市福島区吉野3丁目
    • 【中古一戸建】大阪市大正区北村1丁目
    • 【中古一戸建】大阪市西成区千本北2丁目
    • 【中古マンション】レオーネマンション
    • 【売地】此花区春日出北2丁目建築条件付土地
    • 【売地】西淀川区佃3丁目 建築条件付売地
    • 【売地】此花区春日出北1丁目住宅用地売地
    • 【売地】東成区 東小橋3丁目 売店舗
  • 成約実績
  • ご挨拶
  • 会社概要
  • お問い合わせ
  • トップへ戻る
閉じる